My Blog

  • Providing CAD & BIM Drawings to the M&E Industry

    Professional CAD & BIM Modelling Services

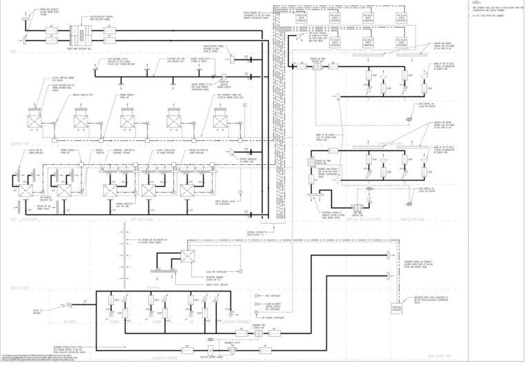
M&E Schematic Drawings –

If you are looking for a more flexible approach to your CAD & BIM staffing requirements then CAD & BIM outsourcing to SGBCAD Design Ltd is the answer outsourcing your CAD & BIM drafting to us you can be sure of the highest quality of service at the same time as making significant financial savings.